Benton

Benton

Spacious Guest Lounge Interior

Latest Plans

St Jude Dream Home

St Jude

Townhomes Volare Exterior (1)

Townhomes

Mordano Verona Collection (1)

Verona Collection

Siena

Sirrah Collection

Details about this plan

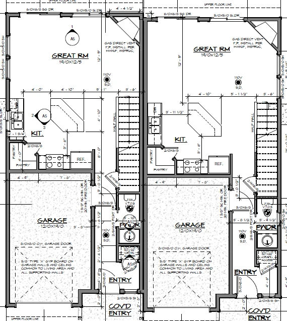
The “Benton” was specifically designed for an infill lot in Camas.  The lot was 50′ wide by 85′ deep and we needed to design within the setbacks and lot coverage allowed in this zone.  This 40′ x 42’6″ plan fit within the allowed building footprint.  It was designed for the side-to-side slope of the lot and its irregular shape.  However, it can be easily altered to slope in the opposite direction, leveled for a flat lot and/or squared to accommodate a standard lot configuration. It is 1450 sqft per side for a total of 2900 sqft, each side has 3 bedrooms and 2.1 baths. Learn more about us, or contact us for more information!

Gallery